De Veste Lelystad

    Jaar

  • 2024
  • Prijsvraag

  • 3e prijs
  • Opdrachtgever

  • Integer Vastgoed B.V.
  • Aannemer

  • Van Wijnen, Lelystad
  • Bouwfysisch advies

  • Mobius Consult, Delft
  • Tuinontwerp

  • Loohorst Landscape, Ermelo

De Veste

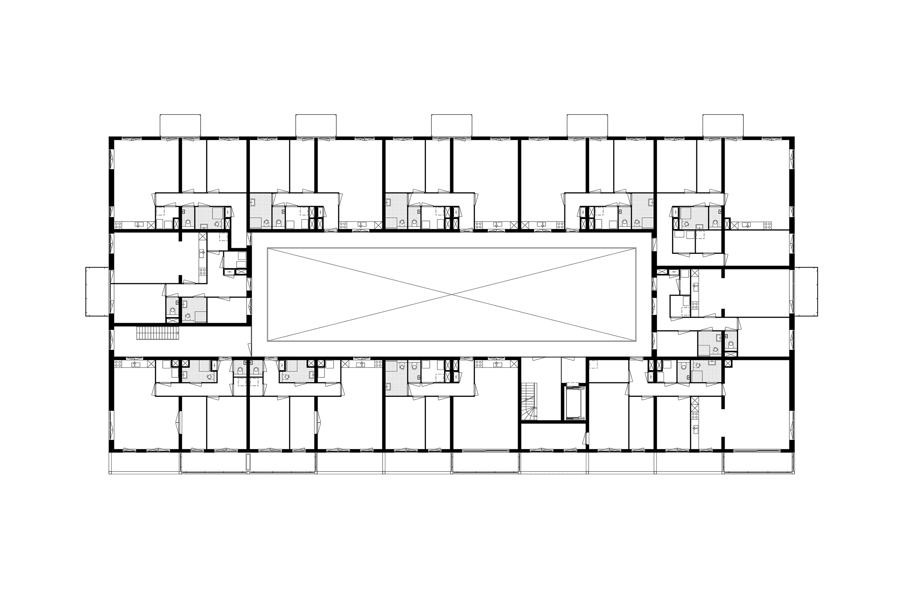
De gemeente Lelystad schreef een prijsvraag uit voor een woongebouw in de wijk De Veste met betaalbare en duurzame appartementen voor bewoners van 55 jaar of ouder. Belangrijke eisen waren een relatief lage vaste koopprijs per appartement, een zorgvuldige stedenbouwkundige inpassing en de realisatie van een geïntegreerde parkeeroplossing.

Het ontwerp heeft rondom een levendige en open uitstraling. De voorgevel met de beeldbepalende witte staalconstructie en de opvallende hoge entree is op de bestaande wijk De Veste georiënteerd. Met de realisatie van een inpandige stallingsgarage zijn alle parkeerplaatsen aan het zicht onttrokken. Er is veel aandacht besteed aan een zorgvuldig vormgegeven overgang tussen het openbare domein en de nieuwbouw. Dankzij de verhoogde terrassen op de begane grond kunnen de bewoners over het trottoir en parkerende auto’s heen kijken terwijl inkijk in hun appartementen wordt beperkt.

Het ruime binnenhof is het gemeenschappelijke hart van het gebouw. Alle 48 appartementen worden via het binnenhof en de galerijen ontsloten. De inrichting van deze collectieve ruimte nodigt bewoners uit om er te verblijven en elkaar te ontmoeten. De beplanting in het binnenhof en rondom de nieuwbouw kent een grote diversiteit en is door Loohorst Landscape zodanig gekozen dat deze een natuurlijke habitat voor talrijke insecten en vogels biedt.